|
|
|
|
 |
|
|
|
|
|
|
Statik / Tragwerksplanung
nach den
aktuellen Eurocode-Normen incl.
Brandschutznachweisen
-
Stahlbetonbau, Mauerwerksbau, Stahlbau (auch mit Edelstahl), Aluminiumbau, Holzbau
- Statik und Konstruktion für Neubauten, Umbauten, Ausbau und Altbausanierung
- Ein- und Mehrfamilienhäuser, Bürogebäude, Tiefgaragen, Keller und Stützmauern
- Industriebauten, Fluchttreppen, Förderanlagen, Transportbehälter, Gitterroste
- Fassaden, Carports, Produktions- und Lagerhallen mit und ohne Kranbahnen
- Glasbau, Überkopfverglasungen, absturzsichernde
Verglasungen, Vordächer, Geländer
- Verstärkung von Betonbauteilen mit aufgeklebten CFK-Lamellen (Sanierung oder Lasterhöhung)
- leistungsfähige aktuelle Computerprogramme: PCAE, MBAEC, Harzer, Abel, HobEx, HILTI, S&P

-
konventionelle oder 2D/3D - Finite-Elemente-Berechnungen für optimale Resultate
-
Überprüfung von Alternativlösungen und
Optimierung für wirtschaftliche Ergebnisse
-
Beratung
für optimale Konstruktionen nach Architekten- und
Bauherrenwünschen
-
tragwerksbezogene Fachbauleitung (Abnahme der Bewehrungen)
-
Statische
Berechnungen als PDF - Dateien und in Papierform
-
CAD-Planung mit der Autodesk Building Design Suite, BauTab.de und Arcon+ in 2D
und 3D
-
Kommunikation und Planaustausch per E-Mail / Internet - Planversand per
Online-Plotservice
Achtung:
Metallbaubetriebe benötigen für Stahlbau-Arbeiten im privaten
Bereich
(tragende und absturzsichernde Bauteile wie z.B. Treppen, Balkone,
Carports, Geländer, Vordächer, Wintergärten) mindestens
ein EXC1-Zertifikat, bei gewerblichen und öffentlichen Bauten ein EXC2-Zertifikat!
Es dürfen ohne Zertifikat nur noch Gartentore, Zäune und
Fenstergitter ohne absturzsichernde Funktion und sonstige nichttragende
Bauteile wie z.B. Fahrradständer hergestellt und montiert werden.
Hersteller, die im Betrieb oder auf der Baustelle
Schweißarbeiten an tragenden Schweißverbindungen
mit Betonstählen ausführen, müssen die Qualitätsanforderungen nach
DIN EN ISO 3834-3 [13] und die Anforderungen
von DIN EN ISO 17660 erfüllen.
Tipps
zum Hauskauf:
Lassen
Sie sich beim Erwerb einer Immobilie unbedingt neben den
Architektenplänen auch die komplette statische Berechnung
inkl.
Ausführungszeichnungen (Bewehrungspläne etc.)
übergeben! Bei Umbaumaßnahmen
wird diese benötigt, ansonsten müsste im
ungünstigsten Fall eine komplett
neue Statik vom Dach bis zum Fundament angefertigt werden! Die
statischen Unterlagen gehören
zum Haus wie der KFZ-Brief zum Auto!
Um weiteren Überraschungen vorzubeugen, sollten Sie sich auch
unbedingt die Baugenehmigung vorlegen lassen (auch für alle
nachträglichen Umbauten), sonst könnte im schlimmsten Fall
der Abriss oder Teilabriss verfügt werden.
Ferner benötigen Sie einen Nachweis, dass die
Erschließungskosten komplett bezahlt sind. Nachträgliche
Forderungen der Kommunen in 5-stelliger Höhe, auch viele Jahre
nach dem Hausbau, sind keine Seltenheit.
"Schnell mal eine Wand herausreißen . . . "
Geländer: Metallbauer, Hausbesitzer, Verwalter oder Planer haften
Hauseinsturz - besser vorher einen Statiker
fragen . . .
Balkon in Mannheim abgebrochen - 3 Tote
Geländer gebrochen - Frau stürzt 7 m ab
Frau in einen Schacht gestürzt
Von Stützmauer begraben
Ausführungsfehler und Schadensfälle
Carport nur mit Statik bauen
Statik spielt entscheidende Rolle
Ich
bearbeite auch kleine Projekte (z.B. statische
Berechnungen für Zimmereien, Metallbaubetriebe,
Renovierungsfirmen, Behörden und Hausbesitzer) genauso gerne
und
sorgfältig wie
größere Bauvorhaben. Senden Sie mir per
E-Mail, Fax oder mit der Post einfach
Ihre Skizzen, Pläne oder Fotos zu, wenn Sie einen Carport, eine Treppe, ein
Geländer, ein Vordach, eine Schachtabdeckung, eine
Garten-Stützmauer oder
eine
Glaskonstruktion bauen wollen oder eine tragende Wand
herausnehmen, einen Dachstuhl
errichten oder umbauen oder ein Aquarium oder Schwimmbecken einbauen
möchten, und Sie
erhalten umgehend ein Angebot per E-Mail (auf Wunsch auch per Fax oder mit der Post). Wenn die anrechenbaren Kosten des
Bauvorhabens weniger als 10.000 EUR nach HOAI 2013 betragen, gibt es
keinerlei preisrechtliche Vorschriften, und das Honorar kann frei
vereinbart werden.
Bitte fordern Sie hiermit unverbindlich ein Angebot für Ihre Baumaßnahme an: PDF DOC
Phasen einer
Tragwerksplanung:
| Phase |
Beschreibung |
| Grundlagenermittlung |
Architekt, Statiker und
Bauherr entwickeln gemeinsam das Anforderungsprofil für das
Tragwerk.
|
| Vorplanung |
Ein
Konzept wird erstellt, welches das Tragwerk unter den Gesichtspunkten
der Standsicherheit, Nutzbarkeit und Wirtschaftlichkeit optimiert.
|
| Entwurfsplanung |
Zunächst
wird eine Überschlagsrechnung mit Schätzwerten
angefertigt,
um die statische Realisierbarkeit des Konzepts zu prüfen.
|
| Genehmigungsplanung |
Jetzt
wird es konkret: Die Positionspläne werden angefertigt und das
Gebäude wird einer detaillierten Statischen Berechnung mit
aktuellen Computerprogrammen unterzogen.
|
| Ausführungsplanung |
Die
Statische Berechnung allein reicht für den Hausbau nicht aus.
In
dieser Phase werden konkrete Ausführungszeichnungen
(Werkpläne, Schalpläne, Bewehrungspläne)
erstellt, die
genau festlegen, was und vor allem wie gebaut werden soll.
|
| Vorbereitung
der Vergabe |
Leistungsverzeichnisse
und Mengenangaben werden vorbereitet, damit die Ausschreibung, Vergabe
und Abrechnung der Bauleistungen durch den Architekten erfolgen
kann. |
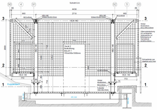
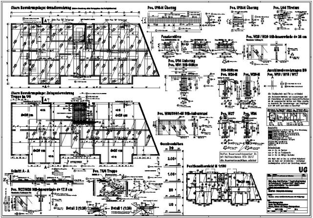
Beispiele:
- Ausschnitt aus einer Statischen Berechnung (wird generell als PDF-Dokument angefertigt)
- CAD
- Bewehrungsplan einer Stahlbetondecke in einem Achtfamilenhaus
(bitte auf das Bild klicken, um den Plan groß als DWF
anzuzeigen
- ggf. muss im Browser das Nachladen einer externen Komponente
zugelassen werden oder Sie laden das kostenlose Programm Autodesk Design Review herunter)
Einführung
in die Tragwerksplanung (PDF ©2008 RWTH Aachen)
Projekte:
Einfamilienhaus in Massivbauweise

Werbeportal aus Stahlträgern

Einkaufszentrum mit Stahl-Fachwerkbindern

Dreifamilienhaus in Massivbauweise:

Dachumbau:

Div. aufgeständerte Balkone in Stahlbauweise:




Vorgehängte Balkone in Stahlbauweise:


Bürogebäude in Massivbauweise und 3 Lagerhallen in Stahlbauweise:




Doppelhaus in Massivbauweise:


Winkelstützwand aus Stahlbeton:


Umbau diverser Wohnhäuser (Massivbauweise):

2 unterkellerte Doppelhäuser in Massivbauweise:


Aufhängung für einen Personenaufzug (Stahlbau):


Werkstatthalle mit Nebenräumen in Holztafelbauweise:

Wohnhaus mit Carport in Holztafelbauweise:

Bürogebäude-Aufstockung in Brettsperrholzplatten-Bauweise:

Wohnhaus-Umbau/Anbau in Holzständerbauweise:

Zweifamilienhaus mit Schwimmbad (Massivbauweise):

Div. Einfamilienhäuser in Massivbauweise (Mauerwerk/Stahlbeton):



Wohnhaus-Aufstockung in Holzbauweise:

Wohnhaus-Neubau in Holzständerbauweise:



Eisenbahnhalle in Stahlbauweise:





Lagerhalle in Stahlbauweise:



TGA-Einhausungen:

Eingangs-Portale:


Carports:


Schachtdeckel für ein Wasserkraftwerk:

Mehrfamilienhaus - Umbau einer Scheune:

Wohnhaus-Anbau (Mauerwerk/Brettstapeldecken):

Glasdach:

Glasgeländer:

Versandhalle in Stahlbauweise:

Stahlbalkon:

Industrie-Fassaden und Verglasungen:



Kläranlagenstege:

Förderbänder:

Div. Transportrahmen:


Schwergewichts-Stützmauer mit Gabionen:

Div. Stahlbau-Treppen:





Treppen- und Balkongeländer (Stahlbau):


Schachtabdeckungen mit Gitterrosten:

Vordächer (Stahlbauweise):


Umbau eines Supermarktes zu einem Wohn- und Geschäftshaus -
Aufstockung um 2 Geschosse:

Achtfamilienhaus mit Tiefgarage (Massivbauweise):

Reihenhaus:


Stadtvilla:
Mehrfamilienhaus - Umbau einer
Scheune:


Die
folgenden Bauwerke wurden in
Arbeitsgemeinschaften, in freier Mitarbeit oder noch im Angestelltenverhältnis
statisch konstruktiv bearbeitet:
Wohnhaus-Aufstockung:

Fahrzeughalle:

Einfamilienhaus am Hang:


Produktionshalle
in Fertigteilbauweise:

Sandlager:

Supermarkt
mit Wohnhaus und Tiefgarage:
|
 |
|
 |
 |
  |
 |
 |
Dipl.-Ing. Kurt
Werdan Tel.
06224-950740 Fax 06224-950741 | info@statik-werdan.de |
|
 |
 |
|
|